 
			 
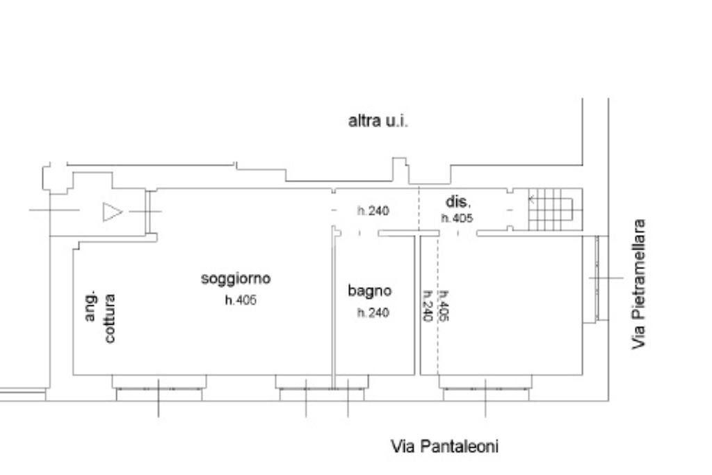
				In una tranquilla traversa di Viale Jenner, a pochi passi dalla zona Bovisa, proponiamo in vendita un affascinante bilocale con taverna finestrata situato all’interno di uno stabile d’epoca in buone condizioni generali. L’appartamento è stato completamente ristrutturato lo scorso anno e si presenta in ottime condizioni interne, con una concezione moderna degli spazi che lo rende funzionale e accogliente.
Disposto su due livelli, l'appartamento si apre al piano terra con un ingresso che conduce direttamente all’ampia zona giorno, caratterizzata da una doppia finestra che garantisce una piacevole luminosità naturale. Sullo stesso livello troviamo il bagno, anch’esso finestrato e completo di box doccia, e la camera da letto, luminosa e silenziosa, anch’essa con doppia finestra. Nonostante la posizione al piano terra, gli ambienti risultano ariosi e ben illuminati.
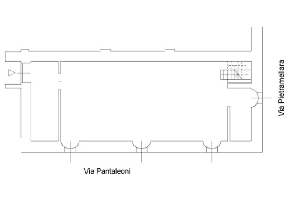
All’interno dell’appartamento sono presenti due scale: una conduce a una zona soppalcata, comoda da utilizzare come ripostiglio, mentre l’altra porta al piano inferiore, dove si sviluppa un ampio locale hobby/taverna. Questo spazio, versatile e accogliente, può essere adattato alle proprie esigenze, diventando una palestra privata, uno studio o una zona relax. Nel piano semiinterrato è inoltre presente un’area lavanderia dedicata.
L'appartamento viene venduto completamente arredato con mobili moderni e di buon gusto. La classe energetica B garantisce un’eccellente efficienza e bassi consumi, mentre la presenza dell’impianto di aria condizionata e le spese condominiali contenute rendono questa soluzione ancora più interessante.
La posizione strategica, in una zona servita e ben collegata, la vicinanza al Politecnico di Milano e la struttura moderna rendono questo loft ideale sia come abitazione principale sia come investimento per chi desidera acquistare un immobile da mettere a reddito.
Ogni agenzia ha un proprio titolare ed è autonoma - Le presenti informazioni non costituiscono elemento contrattuale.
Ti interessa visionare l'immobile?